Сегодня проводятся торги, на которых можно приобрести несколько спальных корпусов и здание клуба бывшего пионерского лагеря «Зорька», расположенного возле Бреста, пишет realt.onliner.by. И они напрямую связаны с обманутыми в Минске дольщиками.

Расположены постройки в очень красивом месте: урочище Сосновый бор Жабинковского района. Вокруг — только вековые сосны. Неподалеку протекает река Мухавец.
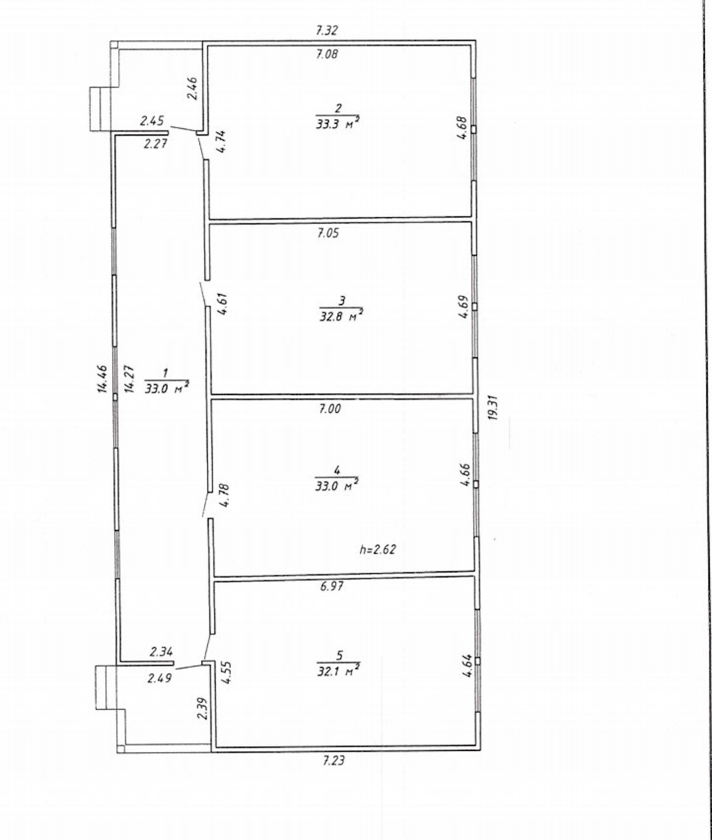
По сведениям организаторов аукциона, домики зарегистрированы в 2007 году, но в реальности они значительно старше. Площадь обеих сборно-щитовых построек весьма солидная — по 164 квадратных метра. Каждое здание разбито на четыре 33-метровых комнаты, коридор занимает такую же площадь. Санузла предсказуемо нет. Отдельный земельный участок под обслуживание капитального строения не выделен.

Сборно-щитовые спальные корпуса оценили в 7 940 BYN. По крайней мере, с этой суммы начнутся торги. То есть за один «квадрат» на старте просят всего 48 BYN.

Продается также и здание клуба площадью 214 квадратных метров (и отсутствие ремонта внутри). Стартовая цена — 12 040 BYN.

Читайте также: В Бресте открыли новый памятник жертвам Брестского гетто. Оказалось, что не все знают, что он символизирует
А теперь самое любопытное: постройки принадлежат ООО «Лесная гавань» (точнее, уже арестованы). Эта организация хорошо знакома дольщикам столичного «Грушевского посада». Часть внесенных ими средств застройщик «Жилстройкомплект», по своему усмотрению, пустил на загородный комплекс под Брестом вместо строительства высоток на проспекте Дзержинского.
Теперь выяснилось, что, помимо парадной части с современными коттеджами, у «Лесной гавани» в запасе был еще и пионерлагерь.
Теперь спальный комплекс и клуб бывшей «Зорьки» арестованы и ждут новых владельцев. Разумеется, если лот заинтересует потенциальных инвесторов.
Читайте также: Цена за квадратный метр выросла, квартир продали больше: что еще произошло на рынке недвижимости Бреста в сентябре
Будь на связи и в безопасности: подключи BGlobal VPN
Наш канал в Telegram. Присоединяйтесь!
Есть о чем рассказать? Пишите в наш Telegram-бот. Это анонимно и быстро


Сообщить об опечатке
Текст, который будет отправлен нашим редакторам: